The Disability Discrimination Act. 1992
Objectives of the DDA
The DDA seeks to:
1. Eliminate discrimination against persons on the grounds of disability in:
* work, accommodation, education, access to premises, clubs and sport; and
* the provision of goods, facilities, services and land;
2. Ensure that persons with disabilities have the same rights to equality before the law as the rest of the community; and
3. Promote recognition and acceptance within the community that persons with disabilities have the same rights as the rest of the community.
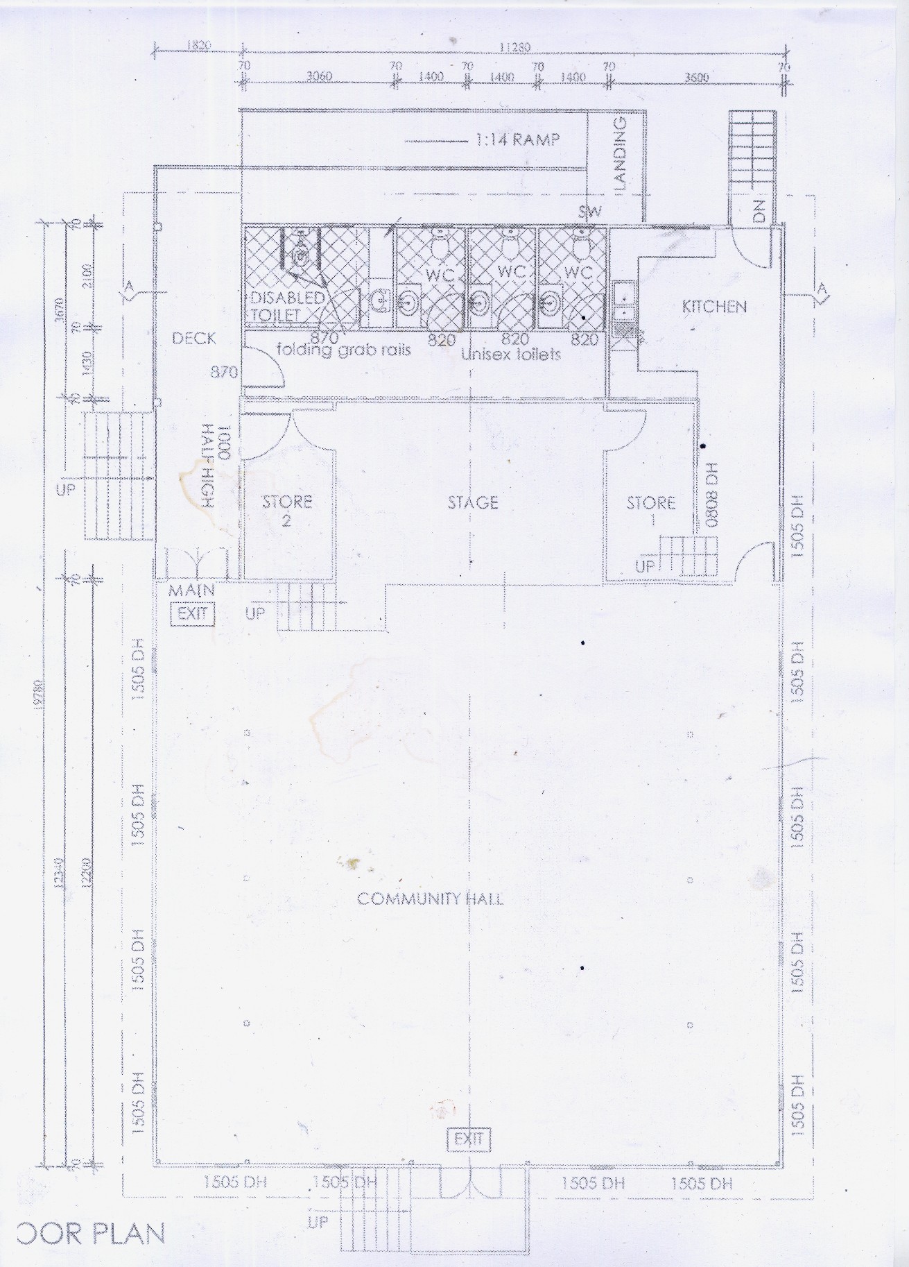
Country Coastal Certifiers advised that, as the proposed access ramp for disabled persons at the hall was located away from the principle access for able bodied persons, changes to the floor plan was required.
After consultation with Bruce Bromley of Equal Access, Victoria, whose help in this matter was invaluable and free, a solution was worked out, and a modified floor plan has been submitted to Country Coastal Certifiers.
To comply with the Disability Discrimination Act and the Building Act, Building Regulations, Building Code of Australia, regarding equal access for all to the main entry of a building, the entry at the side of the stage was re-designed to be the main entrance, with a wide doorway and stairs to the car parking area. The disabled ramp also breached a regulation which requires that there is to be no more that 9 meters between landings on a ramp, requiring a reduction to the length of the longer run.
Obi Obi Hall – Modified floor plan submitted to Country Coastal Certifiers.
If the new disability access is approved by Country Coastal Certifiers, the working drawings will then be amended by EBIS and submitted to the Certifier for their records.
With modifications to the working drawings required, the Management Committee, to reduce costs and time with EBIS, decided to include other changes to the plan of the hall.
The change to the total length of the ramp allowed a re-think of the layout of the kitchen area.
- To make the kitchen door more accessible to the car park area, move the doorway to the rear of the kitchen.
- With the existing stairs to the stage storage area being too steep to comply with building regulations, to reduce the steepness and improve usability, change the access to the kitchen hallway.
Modifications to the design of the hall can be made at any time before or during the construction phase of the renovation, but have to be confirmed by making drawing changes through EBIS, then passed to Council for their records. EBIS by designing the structural requirements to Queensland building standards, acts as the authorizing authority.




