Following an inspection of the Obi hall with Dennis Woodford, Lex Freighburg (builder) met with the Management and Building Committees to discuss the working drawings by Ebis. Lex was able to explain the more complicated parts of the drawings. The existing hall structure will be strengthened with the addition of a steel pfc portal frame against the front wall and speed bracing across the entire roof, leaving most of the interior of the hall without change.
Looking at the front wall. The portal frame is situated inside the existing timber wall frame, and connected directly to the footings.

Note the deep large footings.
Ebis has determined through soil tests, that due to the silty and high plastic clay soil profile, more robust hall footings are required, and because of ponding of water under the hall, they have also recommended that soil be added under the hall to improve drainage. This may require the hall to be temporally raised or relocated, to allow machinery access for digging the larger footing holes and raising the soil profile. Lex will continue to work with the Management and Building Committees for advice regarding the external hall cladding, interior cladding of toilet/kitchen area’s, type of roof insulation(required by Ebis) and the replacement of existing faulty structural timbers. Lex Freighburg has volunteered his services.
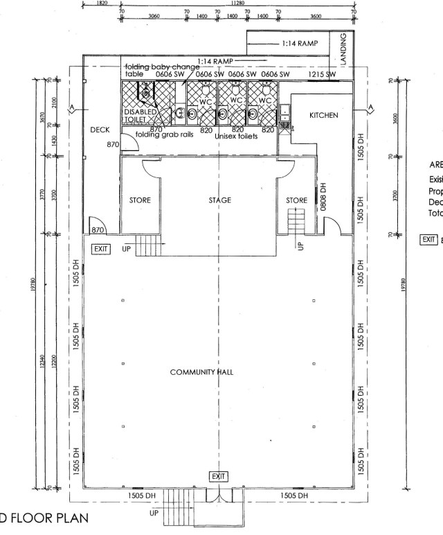
Floor plan

The side elevation is from Staves Road.

Front entrance on the right.
Sunshine Coast Regional Council has approved our application for a discount on our building application.
Obi Obi Rural Fire Brigade. The Dept of Community Safety has been authorized by the Dept of Emergency Services to carry out a flood plain study for the fire shed site.



